AKTUELLES







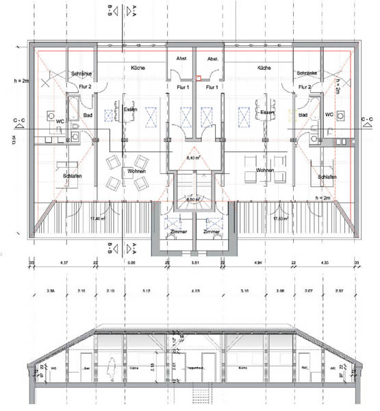
  2012 - 2014   MFH mit 60 WE und Tiefgarage
22307 Hamburg Wittenkamp 19+23
BGF gesamt 6.310 m²
Bauherrin: Schmolke GV GmbH + Co.KG 
         
  01.2011   Wettbewerb SBZ Rostock-Dierkow

 

 

       
  02.07.2010









  Eröffnungsfeier Atlantic Hotel Lübeck












       
  2010




  Studentenwohnheim, Lübeck
für GBI AG
Interessenbekundungsverfahren KWL


       



       
  2009   „Knaben-Schule“ Rostock, Friedhofsweg  -  Teil des Gebäudeensembles Doberaner Hof, Solitär (vor 1900) unter Denkmalschutz, massiver Mauerwerksbau mit Holzbalkendecken und Sprengewerk-Dachstuhl.
Planung von 2 Wohneinheiten unter Erhalt der Dach-Holzkonstruktion.
       
         
       



       
  2008/09   Erweiterung Doberaner Hof, Fortsetzung der Passage, Verknüpfung mit dem Parkhaus am Friedhofsweg,
1. + 2. OG Büroflächen, 3. + 4. OG Wohnungen/Praxen.
Bauherr: Arne Weber






       
  2007/08 ff.










  Atlantic Hotel Lübeck, Schmiedestr. 9 – 15,  Baubeginn und künstlerische Oberleitung









         
         

Bernhard Kohl
Rosental 94
53111 Bonn
Mobil 0160-8461611
info@asp-hamburg.info
www.asp-hamburg.info

site created and hosted by nordicweb